Центральный офис: Москва, Пресненская набережная, д. 12, МФК «Федерация», Башня «А» (Восток), 35 этаж, офисное пространство Headway
+7 (499) 553-00-88 доб.202
Московская область, Наро-Фоминский городской округ, село Петровское, территория промышленная, строение 4/5
Пн-Пт с 08:00 до 18:00 Сб-Вс Выходной

Академия Лофт | Перегородки S7

Проект компании RISHE по установке звукоизоляционных перегородок с жалюзи S7.

Бизнес Центр "Академия лофт" сегодня - это обновлённое пространство в динамичном районе Москвы по адресу Волоколамское шоссе, 116 строение 4.
Заявка на расчет
Задать вопрос
АКХ стеклянные перегородки с жалюзи (1).JPG
АКХ стеклянные перегородки с жалюзи (2).JPG
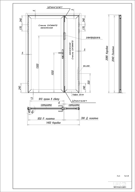
113880-107 согласование чертеж двери.jpg
113880-150 Академия Лофт.jpg
Стеклянные перегородки с жалюзи для Русарм  (5).JPG
Стеклянные перегородки с жалюзи для Русарм  (6).JPG
Полуторные двери в коридор со СКУД для АКХ (5).JPG
Полуторные двери в коридор со СКУД для АКХ (6).JPG
113880-107 согласование чертеж двери.JPG
Полуторные двери в коридор со СКУД для АКХ (3).JPG
Полуторные двери в коридор со СКУД для АКХ (4).JPG
Решение

Проект «Академия Лофт»: бизнес‑центр и интерьерные решения с перегородками S7

1. Концепция бизнес‑центра

«Академия Лофт» — это редевелопмент промышленного здания под современный бизнес‑центр класса B+ в стиле лофт. Концепция объединяет:

  • индустриальную эстетику (открытые коммуникации, высокие потолки, кирпичные стены);

  • гибкость планировок — возможность зонировать пространство под нужды разных компаний;

  • функциональность — инфраструктура «всё в одном» для резидентов.

Целевая аудитория:

  • креативные агентства;

  • IT‑стартапы;

  • дизайн‑студии;

  • малые и средние предприятия, ценящие неформальную атмосферу и удобство.

2. Технические характеристики бизнес‑центра

Параметр Значение Адрес Москва, Волоколамское шоссе, 116, стр. 4 Метро «Тушинская» (1,4 км), «Спартак» (1,8 км) Этажность 2 этажа Общая площадь 3 858 м² Режим работы Круглосуточно Парковка Наземная Год реконструкции 2027

Ключевые преимущества локации:

  • удобный выезд на Волоколамское шоссе;

  • близость к МЦД‑2 (станция «Тушино»);

  • развитая городская инфраструктура района.

3. Интерьерные решения: перегородки S7 как основа зонирования

Перегородки S7 выбраны как универсальное решение для офисов в «Академии Лофт». Они сочетают индустриальный стиль и современные технологии.

Технические характеристики перегородок S7

  • Конструкция: модульная система на алюминиевом профиле.

  • Заполнение: закалённое стекло 8–10 мм (прозрачное, матовое, тонированное).

  • Звукоизоляция: до 45 дБ (класс B).

  • Высота: до 4 м.

  • Толщина профиля: 50–80 мм.

  • Отделка: порошковое покрытие (чёрный, серый, металлик, по палитре RAL).

  • Срок службы: ≥15 лет.

Варианты исполнения для разных зон бизнес‑центра

  1. Open‑space:

    • прозрачные секции с матовым стеклом для рассеивания света;

    • интеграция кабель‑каналов и розеток в профиль;

    • мобильные модули для быстрой перестановки.

  2. Переговорные комнаты:

    • тонированное стекло с электрохромным покрытием (регулируемая прозрачность);

    • магнитные доски на одной из панелей;

    • акустические вставки для улучшения звукоизоляции.

  3. Кабинетные зоны:

    • комбинированные панели (стекло + сэндвич‑панели);

    • раздвижные или распашные двери в едином дизайне;

    • возможность установки жалюзи внутри стеклопакета.

  4. Общие зоны (ресепшн, кафе):

    • декоративные вставки с логотипами резидентов;

    • подсветка по контуру для вечернего освещения.

4. Преимущества перегородок S7 для резидентов «Академии Лофт»

  • Экономия времени: монтаж без «мокрых» процессов — можно въехать сразу после установки.

  • Гибкость: перепланировка за 1 день без капитального ремонта.

  • Энергоэффективность: алюминиевые профили с терморазрывом снижают теплопотери.

  • Безопасность: закалённое стекло при разрушении рассыпается на неострые фрагменты.

  • Дизайн: подчёркивают лофт‑эстетику, не перегружая пространство.

  • Масштабируемость: легко добавить новые модули при расширении команды.

5. Экономический эффект для арендаторов

Использование перегородок S7 снижает затраты на обустройство офиса:

  • на 30 % — по сравнению с капитальными стенами (не нужны штукатурка, покраска);

  • на 20 % — за счёт экономии на освещении (естественный свет проходит через стекло);

  • до 15 % — на кондиционировании (профили не блокируют потоки воздуха от сплит‑систем).

6. Рекомендации заказчика (пример)

Заказчик проекта поставил задачи:

  1. Сохранить индустриальный дух здания, но добавить комфорт современного офиса.

  2. Обеспечить возможность быстрой перепланировки под новых арендаторов.

  3. Минимизировать затраты на отделку без потери качества.

  4. Создать узнаваемый визуальный код для всех помещений бизнес‑центра.

Как перегородки S7 решают эти задачи:

  • открытые алюминиевые профили и стекло подчёркивают стиль лофт;

  • модульная система позволяет менять планировку за часы;

  • готовые решения «под ключ» сокращают бюджет на ремонт;

  • единый дизайн‑код (чёрный профиль + прозрачное стекло) создаёт фирменный стиль.

Решение: перегородки S7 — скорость, качество, надёжность

При реализации проекта бизнес‑центра «Академия Лофт» особое внимание уделялось выбору решений для зонирования офисных пространств. Ключевыми критериями стали:

  • скорость монтажа без задержек сроков сдачи объекта;

  • гарантированная звукоизоляция для комфорта резидентов;

  • долговечность конструкций при интенсивной эксплуатации;

  • гибкость планировок под нужды разных арендаторов.

Перегородки S7 от ООО «РИШЕ» полностью соответствовали этим требованиям и продемонстрировали превосходные результаты на практике.

Подтверждение от партнёра: отзыв ООО «АКХ им. К. Д. Памфилова»

ООО «АКХ им. К. Д. Памфилова» (г. Москва, Волоколамское шоссе, д. 116), один из ключевых арендаторов бизнес‑центра, поделился опытом использования перегородок S7:

«Хотим отметить плодотворное сотрудничество с ООО „РИШЕ“ и поделиться впечатлениями от работы с вашей компанией.

Осмотр готового объекта подтвердил: уровень исполнения заметно превосходит рыночные аналоги.

Особенно хочется выделить два момента:

  • Скорость работы. После оплаты материалы поступили на объект уже на следующий день — это существенно ускорило реализацию проекта.

  • Качество звукоизоляции. В отличие от предыдущих подрядчиков, ваши конструкции полностью соответствуют заявленным характеристикам. Никаких доработок или нареканий не потребовалось.

Опыт оказался настолько удачным, что мы:

  • самостоятельно разместили повторный заказ;

  • рекомендуем ваши услуги другим арендаторам как проверенное решение.

Для нас важно, чтобы партнёр не просто выполнял обязательства, а предвосхищал ожидания. ООО „РИШЕ“ именно такой подрядчик — ответственный, оперативный и профессиональный».

С уважением,
Безбородов А. И.
ООО «АКХ им. К. Д. Памфилова»

Ключевые преимущества решения в цифрах

  • Срок поставки: от 1 рабочего дня после оплаты.

  • Звукоизоляция: до 45 дБ — подтверждено практикой.

  • Гибкость: перепланировка за 1 день без капитального ремонта.

  • Долговечность: срок службы — ≥15 лет.

  • Экономия: снижение затрат на обустройство офиса на 20–30 % по сравнению с капитальными стенами.



Итоги проекта и перспективы

Реализация бизнес‑центра «Академия Лофт» стала успешным примером редевелопмента промышленного здания в современный офисный комплекс класса B+. Проект объединил индустриальную эстетику стиля лофт с передовыми интерьерными решениями, обеспечив резидентам комфортное и функциональное пространство для работы и развития бизнеса.

Ключевые достижения:

  • создание гибкой среды с возможностью быстрой перепланировки под нужды арендаторов;

  • внедрение энергоэффективных и долговечных решений (перегородки S7, современные инженерные системы);

  • формирование привлекательного имиджа бизнес‑центра за счёт единого дизайн‑кода и высокого качества исполнения;

  • укрепление партнёрских отношений с ключевыми арендаторами, такими как ООО «АКХ им. К. Д. Памфилова».

Перспективы развития:

  • масштабирование опыта использования перегородок S7 на другие объекты сети бизнес‑центров;

  • расширение линейки интерьерных решений для резидентов (интеграция умных технологий, экологичных материалов);

  • развитие инфраструктуры бизнес‑центра с учётом потребностей растущего сообщества резидентов.

Проект «Академия Лофт» подтверждает: продуманные архитектурные и технические решения, надёжные партнёрские связи и ориентация на потребности клиента — залог успеха современного бизнес‑пространства.

Мы открыты к новым вызовам и готовы делиться опытом реализации успешных проектов!

Бизнес-центр «Академия Лофт» диктует особые требования к оформлению офисных пространств, где индустриальная эстетика должна сочетаться с функциональностью. Специалисты «Рише» выполнили проект по установке стеклянных перегородок системы S7, идеально интегрировав их в аутентичную среду объекта.

Основной задачей стало создание эргономичных рабочих зон без ущерба для визуального объема помещения. Выбранные лофт-перегородки с характерной черной раскладкой подчеркнули высоту потолков и сохранили единство стиля БЦ. Использование закаленного стекла обеспечило высокий уровень безопасности и долговечности в условиях активной эксплуатации коммерческого пространства.

Грамотный монтаж в Москве позволил реализовать сложные узлы примыкания к существующим конструкциям здания. Данный кейс подтверждает возможности системы S7 как универсального инструмента для зонирования современных офисов класса А, где важна безупречная геометрия и премиальное качество материалов.


Ответим в течение 30 минут

Доверьте организацию вашего рабочего пространства профессионалам. Закажите консультацию прямо сейчас и получите бесплатный замер и чертеж!

Телефон: 8(499)553-00-88 
Email: sales@rishe.ru 
Адрес: Москва, Пресненская набережная, д. 12, МФК «Федерация», Башня «А» (Восток), 35 этаж, офисное пространство Headway

Связаться в WhatsApp

Свяжитесь с нами

Ответим в течение 30 минут

Доверьте организацию вашего рабочего пространства профессионалам. Закажите консультацию прямо сейчас и получите бесплатный замер и чертеж!

Телефон: 8(499)553-00-88 
Email: sales@rishe.ru 
Адрес: Москва, Пресненская набережная, д. 12, МФК «Федерация», Башня «А» (Восток), 35 этаж, офисное пространство Headway

Связаться в WhatsApp

Свяжитесь с нами

 

 

 

 

Отзывы
Отзыв от отеля "Аэростар"
Настоящим письмом компания ООО «БИЗНЕС ОТЕЛЬ» сообщает, что за время сотрудничества Компания РИШЕ...
Отзыв от компании Минерал Инфо
В декабре 2018 года, компанией РИШЕ были выполнены работы по установке перегородки и раздвижной д...